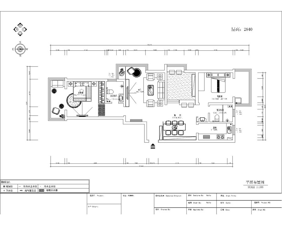
戶型:三居 3#C戶型
-
日期:2016-04-28
-
點擊:1663
戶型分析:
設計效果圖:



提交信息,試試看!
已有96人提交
找到自家小區(qū),快速獲得現成的設計案例!
日期:2016-04-28
點擊:1663
戶型分析:
設計效果圖:



提交信息,試試看!
已有96人提交